On the hills south of Florence, in the locality of Bellosguardo, the new owners of an ancient and prestigious villa are looking for an architectural firm capable of facing the important renovation of their property. We have been invited to present a draft project, to adapt the property to their needs, leaving us carte blanche on the style to be applied.
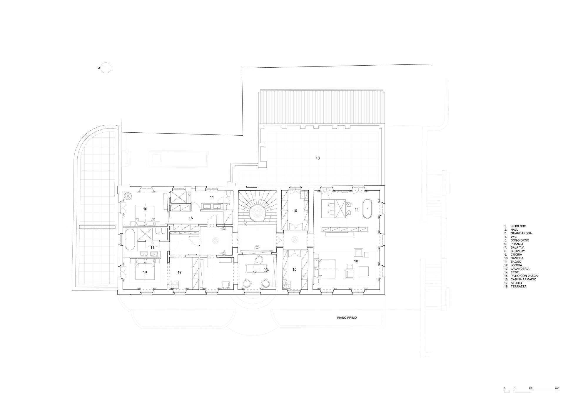
A luxurious villa with large spaces around the main functions. We focused on the reorganization of the existing spaces in order to restore harmony to the plan, respecting the various requests inherent to the functional program. Ensuring to the main accommodation maintained the view of the splendid panorama.
The house is split over two floors. The entrance to the ground floor with the staircase divides the sleeping area from the living area. Wall covered with wainscoting hides the numerous wardrobes. The bedrooms have become small rooms in their own right, where each room has its own bathroom and walk-in closet. Living room and dining room come together through the open central fireplace.






